< Anterior
Siguiente >
<< Volver
REF. 002.12586
Favorito
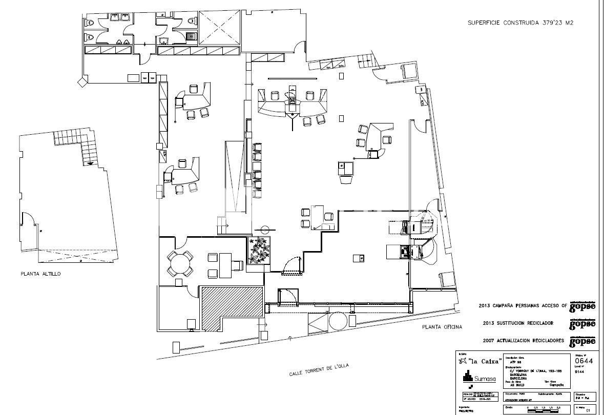
DIÁFANO, CON AMPLIA FACHADA Y GRANDES ESCAPARATES
545.000 €
280 m2
2 baños
2.50 m
Buen estado
545.000 €
EN SUBASTA 14 DIAS ANTIGUA OFICINA CAIXA - LOCAL de 280m2.
Antigua oficina bancaria con 2 grandes escaparates a calle. Más de 15 metros de fachada lineal. Superficies diáfanas.
Adaptado a las normativas de accesibilidad y evacuación. Ideal para oficinas corporativas.
Zona comercial del barrio de Gracia, cerca de Plaza Lesseps. Ideal para showroom o exposición por la gran visibilidad de los escaparates o para cualquier uso excepto actividades que requieran salida de humos.
Si puede estar interesado en este inmueble o quiere conocer nuestra amplia cartera de productos, contacte con el Departamento de Locales de Fincas Siglo XXI, somos una empresa líder en el sector con una larga trayectoria. Nuestros consultores encontrarán el inmueble que mejor se ajuste a sus necesidades.
Referencia: 00212586
< Anterior
Siguiente >
Gracias!! Mensaje enviado. Contactaremos contigo muy pronto.
Error en envío del formulario:

























https://prod.fincassigloxxi.es/fichaproducto.html?id=12586
Abre tu correo, pega el enlace del inmueble y envíalo a quien desees
Características
Baños
2 baños
Altura Techo
2.50 m
Calif. Energ.
X
Condiciones generales
Los datos expuestos nos han sido facilitados por terceros, como meramente informativos y se suponen correctos. Fincas Siglo XXI no garantiza su veracidad. La oferta puede estar sujeta a imprecisiones, errores, omisiones no intencionadas, cambios de precio y/o a la retirada del mercado sin previo aviso. Los gastos e impuestos de trasmisión de la propiedad, el IVA o ITP, Notaría y Registro corren a cargo del comprador. Los honorarios del Agente son a cargo del vendedor
Contactar

